KÖTZ-Haus 178
- Terrassenüberdachung und verputzte Dachuntersicht inkludiert
- Wohnnutzfläche EG inkl. Stiege: 95,54 m²
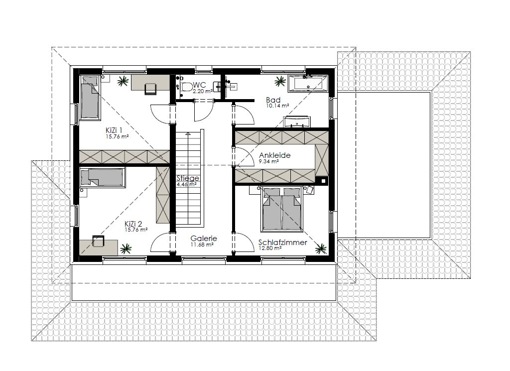
- Wohnnutzfläche OG inkl. Stiege: 82,14 m²
- Kellergeschoss inkl. Stiege: 72,06 m²
- Gesamtwohnnutzfläche
inkl. Stiege: 177,68 m²
Architektur durch individuelle Planung.
Fotos
Grundrisse
Zusatzaustattungen
Aufpreis Fenster und Fenstertüren
Hebe-Schiebetüre
Insektenschutzrollo bis 100/135cm / je Stk.
Insektenschutzdrehrahmen bis 100/225 je Stk.
Insektenschutzschieberahmen bis 300/225 je Stk.
Wäscheabwurfschacht vom OG bis KG
Wäscheabwurfschacht vom EG bis KG
Sprossenheizkörper in weiß / je Stk
Blitzschutzanlage
Luft-/Wärmepumpe Splitsystem
Kontrollierte Wohnraumlüftung
Photovoltaikanlage 3 kWpeak
Photovoltaikanlage 5 kWpeak
Fassade mit Steinwolldämmung 16cm
Aussenwände 50cm Hochlochziegel
Preise
Hauspreis belagsfertig ohne Stahlbetonkeller, ohne Fundamentplatte
Inkl. Erdwärmeheizung, sanitärer Rohinstallation, Elektroinstallation, Beschattung und Rauchfang
Hauspreis belagsfertig ohne Stahlbetonkeller, mit Fundamentplatte
Inkl. Sockeldämmung und Eingangspodest
Hauspreis belagsfertig inkl. Stahlbetonkeller
Inkl. Estrich, betonierter Stiege sowie verputzter Zwischenwände im Keller
Schlüsselfertiger Ausbau
Inkl. Boden- und Wandfliesen, Parkettböden, Stiegenbelag und Handlauf, Innentüren, Malerarbeiten und sanitärer Einrichtung
Hauspreis schlüsselfertig inkl. Stahlbetonkeller

